Jannah Theme License is not validated, Go to the theme options page to validate the license, You need a single license for each domain name.
ActualitateSliderSocialUltima ora

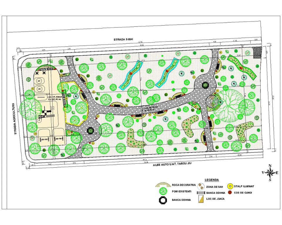
Parcul de la Lido va fi modernizat

Parcul din zona Lido va intra în procesul de reabilitare și modernizare. Autoritățile locale au elaborate deja proiectul care prevede acest lucru, astfel că în perioada următoare vor începe lucrările. Modernizarea parcului presupune reconfigurarea aleilor, plantarea de arbori, acoperirea întregii suprafețe cu rulouri de gazon, instalarea de sisteme de irigat și amplasarea de mobilier nou. De asemenea, va fi modernizat sistemul de iluminat.

“Parcul din zona Lido (inclusiv locul de joacă) va fi modernizat în perioada următoare și avem deja un proiect în acest sens. Ca și în cazul celorlalte zone verzi pe care le-am refăcut recent, se va interveni pentru reconfigurarea aleilor, plantarea de arbori, acoperirea întregii suprafețe cu rulouri de gazon, instalarea de sisteme de irigat și amplasarea de mobilier nou.

Va fi modernizat sistemul de iluminat, cu accent pe iluminatul peisagistic cu proiectoare care vor pune în valoare elementele dendrologice.

Acordăm o atenție deosebită acestor zone verzi care au un rol deosebit de important în revitalizarea cartierelor, asigurând nu numai un aspect plăcut, dar și spații deosebite pentru petrecerea timpului liber.”, a declarat primarul Marcel Romanescu.

 

Articole similare

Back to top button